Project Description
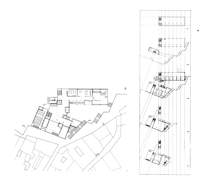
Headquarters of the Official College of Architects of Catalonia in Lleida, COAC
Lleida, (1995)
Description: New Construction, Special Plan, Headquarters, School
Client: Official College of Architects of Catalonia
Constructed area: 3,500 m²
Completion date: 1995
Construction of the new headquarters of the Official College of Architects of Catalonia, Lleida. The building is located between the historical center of the city and the new institutional area, so the surroundings (squares, streets, entrances…) are also built to save the strong architectural unevenness. In addition to the architectural project, the interior furnishing project of the building is carried out.



















